L’Embarcadère, un skate park, un terrain 3×3 (basket), bientôt le nouveau cinéma « Le Capitole » et sans doute, prochainement, un complexe de loisirs multi-activités de 2700 m2.
Ce projet a été présenté mardi soir au conseil municipal de Montceau-les-Mines par le porteur de projet, Lionel Gondret. « C’est la concrétisation finale de l’aménagement du site » annonçait Lionel Duparay, adjoint aux finances.
La majorité et les oppositions ont donc voté à l’unanimité la vente du terrain d’environ 3000 m2 au prix de 50 € le mètre carré à Batifranc. Le permis de construire va être déposé, la pose de la première pierre est prévue en octobre 2025 et l’ouverture devrait avoir lieu en août 2026 avec une prévision de 160 000 entrées à l’année.
Lionel Gondret et Catherine, son épouse, ne sont pas des novices en la matière. Ils ont géré un park (laser game et paintball) en juillet 2007 à Bourg-en-Bresse d’où ils sont originaires, ouvert toujours à Bourg en décembre 2019, un park de 3600 m2 (CA 3.6 M €), dirigé un park de 4500 m2 à Chalon-sur-Saône (9 activités et un restaurant avec un CA de 2.5 M €) ou encore un park de 2000 m2 à Dijon (4 activités et un restaurant, CA de 2.2 M €) et, selon la structure, de 3 à 34 collaborateurs.
« À l’heure où les familles cherchent à recréer du lien entre parents et enfants, où les adultes privilégient leur vie personnelle et les expériences entre amis, où entre collègues on cherche des lieux d’afterwork, où les entreprises souhaitent créer de la cohésion dans leurs équipes, notre projet vise précisément à répondre à ce besoin et de manière durable. Adrenalyn se positionne comme un lieu d’expérience à vivre ensemble, dans un cadre convivial avec l’ambition d’avoir un impact positif sur la vie sociale soit au
travers de son offre ou au travers de futur partenariat avec, entre autres, les acteurs du monde sportif » a expliqué Lionel Gondret.
Si tout le monde a loué ce projet, néanmoins, Isabelle Louis (PS) et son groupe avec Martine Boguet (PC), en sa fonction de vice-présidente de la CUCM chargée de la contractualisation est venue mettre son grain de sable en rappelant que sur cet emplacement, « la CUCM devait aménager les abords au cinéma » et s’étonnait du manque de concertation. « Je vous invite à vous rapprocher de la CUCM ».
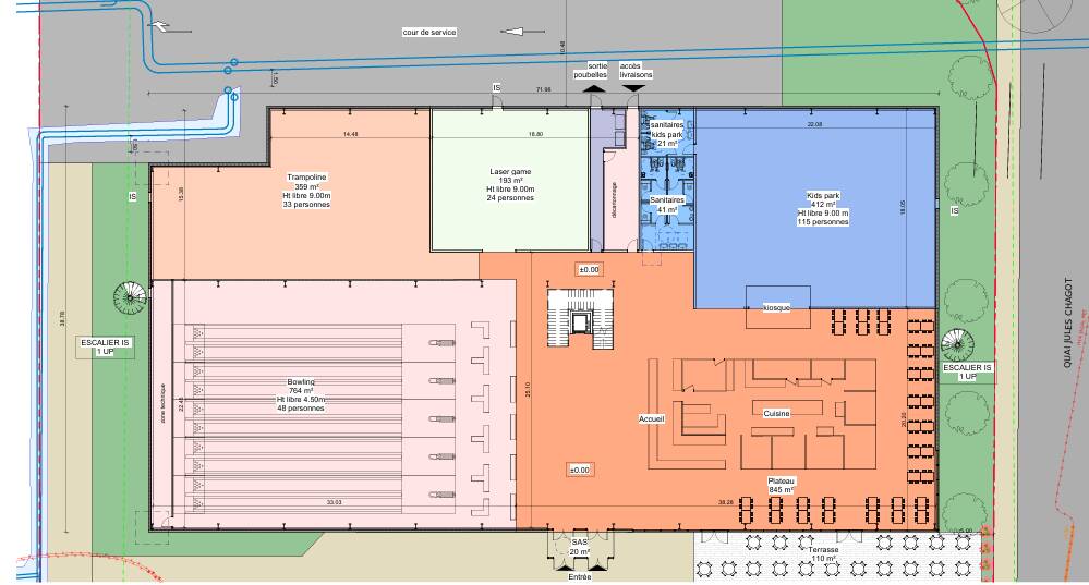
Ouvert tous les jours sauf le lundi
Savait-elle que « tout a été vu avec David Marti, président de la CUCM et madame le maire » précisait Lionel Duparay, « et même avec madame Couillerot (vice-présidente en charge de l’aménagement de l’espace public), ajoutait Marie-Claude Jarrot et rétorquait à Isabelle Louis: « Nous sommes des élus responsables, ce n’est pas vous qui êtes en charge du dossier ».
Ce projet faisait naître cependant des inquiétudes chez Laurent Selvez (PS) et son groupe « tout seul » sur la restauration proposée par ce park d’activités, l’aménagement sur l’ensemble du site en lien avec le parc Maugrand et qu’adviendra-t-il de la fête foraine ? « Nous ne sommes pas là pour tuer le commerce existant, nous ne sommes pas un restaurant mais un complément » exposait le porteur du projet. « Nous n’allons pas rejeter un projet pour dix jours de fête foraine. Il n’y a pas de problème avec les forains » avançait le premier adjoint, Gérard Gronfier.
Quant à Eric Commeau (Energies Citoyennes), il faisait surtout remarquer qu’il « manque un plan d’aménagement global surtout que le centre-ville se développe de l’autre côté du canal ». Sans doute faisait il référence aux aménagements du quartier des équipages sous l’ère Didier Mathus. « Quand vous vouliez recouvrir la place Malraux avec du commerce de masse » lui lançait alors Lionel Duparay à qui il n’a fallu qu’un pas de côté pour déborder sur les aménagements commerciaux à Montceau-les-Mines, sur la zone Jardiland avec un nouveau bâtiment en construction (Gemo), bientôt la salle de sport (L’orange Bleue) et même l’ancien Casino, « ça bouge » dira-t-il, sans en dire davantage.
On peut toujours regretter la suppression de places de parking, « mais ce n’est pas un problème sur Montceau » notait encore l’adjoint aux finances avant que madame le maire précise avant que la remarque ne tombe dans la discussion, « au centre-ville, le problème ce sont les m2 disponibles qui manquent. Les investisseurs recherchent plus de 1000 m2 ».
En définitive, ce futur Adrenalyn est un projet qui doit s’inscrire dans une dynamique de développement commercial avec un opérateur local pour compléter l’offre de divertissement créée autour de l’Embarcadère et du cinéma. L’établissement sera ouvert de 10h à 23h en semaine, jusqu’à 2h le week-end et fermé le lundi.
« Voici une activité innovante pour la jeunesse » gratifiait Lilian Noirot.
Etonnamment, personne n’a évoqué le coût d’un tel investissement quand bien même est il un projet privé.
J.B.

Ce complexe de loisirs multi-activités proposera un bowling, laser game, trampoline, karaoké, réalité virtuelle… et un espace de restauration.



















